MONROE Y MIÑONES | 4 AMB | JARDÍN Y PILETA | COCHERA 3 AUTOS
- U$S595.000
MONROE Y MIÑONES | 4 AMB | JARDÍN Y PILETA | COCHERA 3 AUTOS
- U$S595.000
Descripción
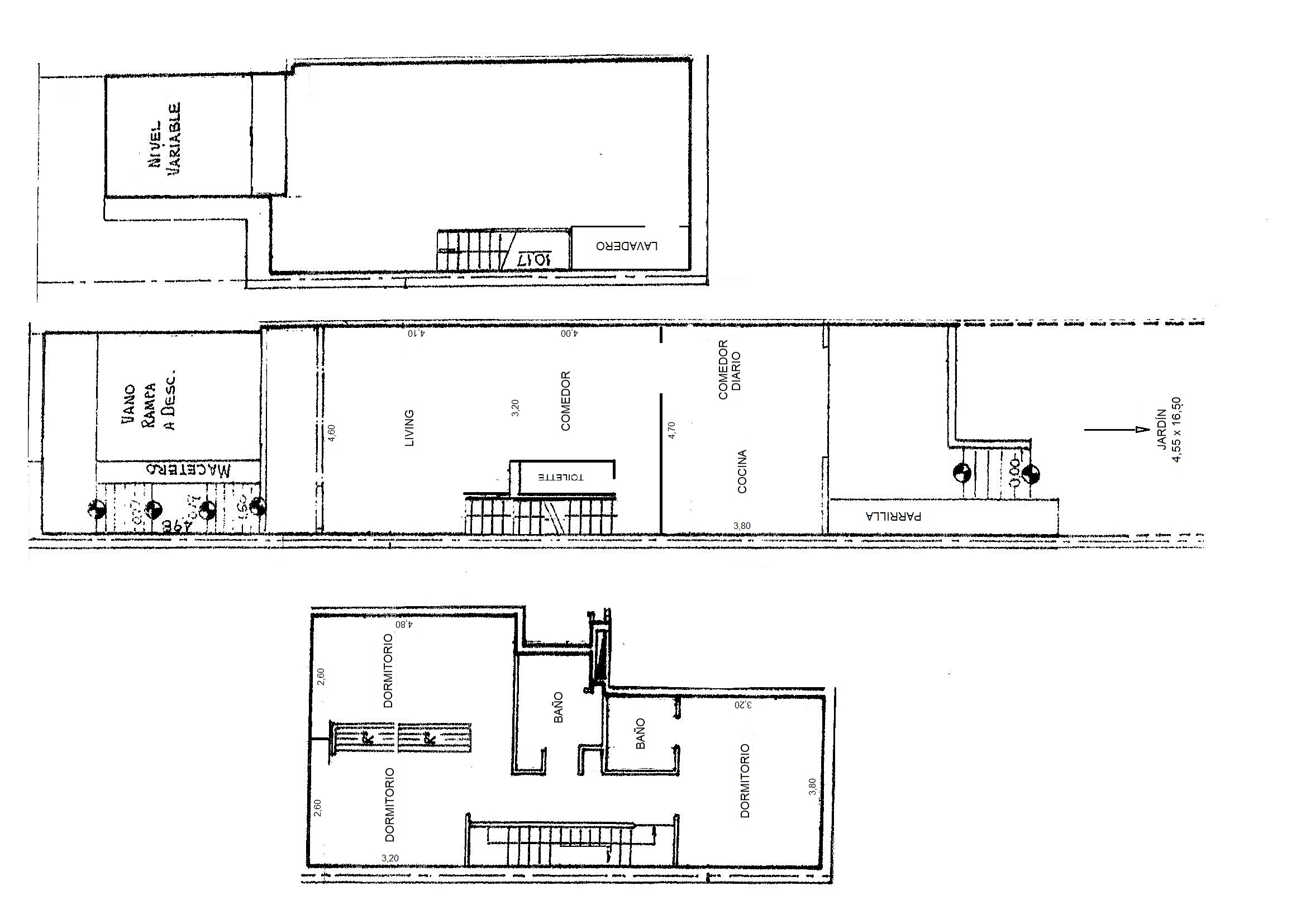
Una opción impecable para el sueño de la casa con jardín y pileta en Belgrano Chico, en un precio alcanzable. Excelente e impecable duplex sobre lote de 35 m de fondo. Reciclado muy moderno y con buen gusto. Tres dormitorios, el principal en suite.
Dos baños completos y toilette. Cómodo, lavadero y baño de servicio. Garage para 2 autos y espacio descubierto para un tercero.
Oportunidad. Venta firme.
Dirección
Google Maps-
Dirección: MONROE 1200
-
Barrio: Belgrano Chico
Detalles
Actualizado en abril 13, 2026 a 11:20 am-
Precio U$S595.000
-
Superficie Cubierta 253 M2
-
Dormitorios 4
-
Ambientes 3
-
Baños 3
-
Cocheras 3
-
Tipo de propiedad DUPLEX, Residencial
-
Tipo de Operación Venta
Características
Información de contacto
Ver PropiedadesPropiedades Similares
Av. de Los Incas y E. Martinez | 2 Amb. | Vista Panorámica
3500, Avenida de los Incas, Colegiales, Buenos Aires, Comuna 13, Ciudad Autónoma de Buenos Aires, C1426ELR, ArgentinaIMPECABLE 3 AMB | COCHERA FIJA | UGARTE Y AMENABAR
2600, Manuel Ugarte, Belgrano, Buenos Aires, Comuna 13, Ciudad Autónoma de Buenos Aires, C1428AAX, ArgentinaRafael Hernández y Victorino de La Plaza | PH | 5 Amb | Terraza | Sin Expensas
2700, Rafael Hernández, Barrio River, Belgrano, Buenos Aires, Comuna 13, Ciudad Autónoma de Buenos Aires, C1424BCL, ArgentinaOlazabal y Artilleros | 5 Amb | Patio y Terraza | 2 Cocheras
1200, Olazábal, Bajo Belgrano, Belgrano, Buenos Aires, Comuna 13, Ciudad Autónoma de Buenos Aires, C1424BCL, Argentina
- Liliana